MB-77 HS

The MB-77HS "Lift & Slide" door product is an ideal solution for connecting interior space rooms or conservatories with the outside balcony, terrace or garden area.

Providing both a smooth & silent slide action operation, it can bring the benefits of a beautiful day outside, into the living space. In addition, & by way of its design & operation, the MB-77HS is a great space saving opening & does not encroach the free space beyond the internal or external confines of the frame, without any compromise. Providing excellent weather tightness together with enhanced thermal performance, the MB-77HS complies with all of the requirements associated with this product type. Available in two different options, with regard to the level of thermal performance, the MB-77HS is further categorised as "ST" and "HI", standard or highly insulated. The design & arrangement of the system profiles enable luxurious openings of large dimensions, accommodating double & even triple glass unit compositions, which in conjunction with the constituent parts & innovative technical solutions, help achieve a high level of thermal & acoustic performance.

Due to the system properties, & rigorous performance proven through a stringent testing regime, the MB-77HS is ideally suited to many domestic & retail applications, providing a comfortable, safe working, cost effective & low maintenance solution for the end user.

Functionality, aesthetic values, durability:

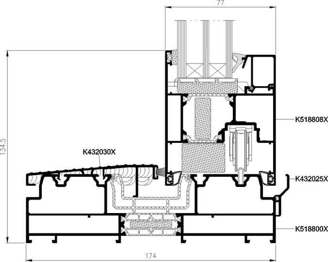
  • the slender, durable profile makes it possible to build a low-threshold door with a leaf weight of up to 600 kg, a height of up to 3.24 m and a width of up to 3.3 m
  • a solution featuring a narrow mullion is available. The visible width of the profiles at the point where the door leaves meet is a mere 47.5 or 50 mm
  • 90- and 270-degree corner doors with a movable mullion can be produced
  • there is a wide range of infills, including single- or double-glazed units, as well as thermal breaks, additional accessories and insulating inserts, making it possible to achieve excellent thermal and acoustic performance
  • three types of glazing beads are available, the rectangular Standard, the rounded Prestige and the diamond-shaped Style
  • the closed shape of the glazing beads and the break-in prevention details make it possible to obtain increased burglary resistant properties without changing the door’s fundamental construction elements
  • the tailored shapes of the stop seals and glazing gaskets, together with the appropriate hardware, ensure high air- and watertightness
  • the profiles are designed to allow a great many of the manual and automatic locking devices available on the market to be installed
  • the door can be fitted with an HS-Master motor operated by either a button or a remote control
  • the Comfort Close mechanism available with the system provides user safety, even with large, heavy doors
  • the MB-77HS features a high level of compatibility with ALUPROF’s MB-86 system. This means that the door can be aesthetically combined with MB-86 windows. In addition, some of the same parts can be used to produce both types of structure
  • the possibility of using a concealed "HS e-Power" drive, equipped with an intelligent obstacle detection system and a load switch.
  • A profile compensating for the results of slab drift by up to 20 mm and making it possible to adjust the level of the upper frame is available for the door
  • the wide range of colours means that the door can be used freely in the composition of any interior or exterior décor
  • the frames are available in two variants, twin-track and triple-track
  • convenient solutions featuring a low threshold or a flat one, laid flush with the patio or balcony